一、美標提升式旋塞閥 產品概述
本公司的X43H美標提升式旋塞閥適用于公稱壓力150Lb~1500Lb,工作溫度-29~550℃的石油、化工、化肥、電力行業等多種工況的管路上,切斷或接通管路介質。X43H美標提升式旋塞閥的開啟過程:開啟閥門時,要先旋轉手輪,使塞子上升,與密封面脫離,再旋轉手柄90°,使塞子的通道和閥體的通道相通,達到開啟的目的。而關閉的過程是先旋轉手柄90°,使塞子的通道和閥體的通道垂直,再旋轉手輪,使塞子下降,達到密封。
|
|
|
X43H美標提升式旋塞閥
|
X43H美標提升式旋塞閥 (結構圖)
|
二、美標提升式旋塞閥 產品概述
1、產品結構合理、密封良好、性能優良、造型美觀;
2、閥門的啟閉過程是在密封面脫離的狀態下進行的,不會使密封面的磨損。
3、雙向流動,安裝使用方便。
4、零件材質及法蘭尺寸可根據實際工況或用戶要求合理選配,可達到工程需要。
三、美標提升式旋塞閥 技術規范
|
結構形式
|
BB-BG-OS&Y
|
|
驅動方式
|
手輪、傘齒輪、手柄
|
|
設計標準
|
API599、API6D
|
|
結構長度
|
ASME B16.10
|
|
連接法蘭
|
ASME B16.5
|
|
試驗和檢驗
|
API598.API6D
|
四、美標提升式旋塞閥 產品性能
|
公稱壓力(LB)
|
殼體試驗壓力(MPa)
|
密封試驗壓力(MPa)
|
適用溫度(℃)
|
使用介質
|
|
150
|
3.0
|
2.2
|
≤550℃
|
水、蒸汽、油品等
|
|
300
|
7.5
|
5.5
|
|
600
|
15.0
|
11.0
|
|
900
|
22.5
|
16.5
|
|
1500
|
37.5
|
27.5
|
五、美標提升式旋塞閥 主要零件材料
|
名稱
|
材質
|
|
閥體
|
ASTM A216-WCB ASTM A217-WC1、WC6、WC9、C5 ASTM A351-CF8、CF8M、CF3、CF3M
|
|
塞子
|
ASTM A182-Gr.F6a ASTM A182-F22 ASTM A182-F304、F316、F321、F304L、F316L
|
|
墊子
|
柔性石墨+不銹鋼
|
|
閥蓋
|
ASTM A216-WCB ASTM A217-WC1、WC6、WC9、C5 ASTM A351-CF8、CF8M、CF3、CF3M
|
|
螺栓
|
ASTM A193-B7,A320-B8 A193-B8M
|
|
六角螺母
|
ASTM A194-2H,A194-8,A194-8M
|
|
填料
|
柔性石墨
|
|
填料壓蓋
|
ASTM A216-WCB ASTM A217-WC1、WC6、WC9、C5 ASTM A351-CF8、CF8M、CF3、CF3M
|
|
手柄
|
ASTM A216-WCB ASTM A351-CF8、CF8M、CF3、CF3M
|
|
閥桿螺母
|
銅合金
|
|
手輪
|
ASTM A536 Gr.60-40-18 ASTM A216-WCB
|
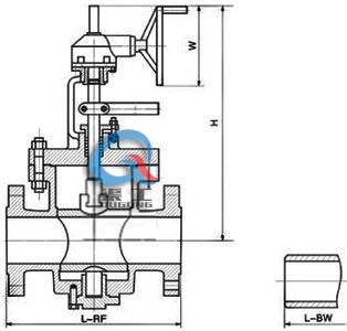
六、美標提升式旋塞閥 主要外形尺寸圖
|
|
|
X43H美標提升式旋塞閥 (手輪傳動)
|
X343H美標提升式旋塞閥 (蝸輪傳動)
|
七、美標提升式旋塞閥 主要連接尺寸
|
型號
|
X47-150LB
|
|
壓力等級
|
150LB
|
|
口徑Size
|
mm
|
15
|
20
|
25
|
32
|
40
|
50
|
65
|
80
|
100
|
125
|
150
|
200
|
250
|
300
|
350
|
|
in
|
1/2
|
3/4
|
1
|
11/4
|
11/2
|
2
|
21/2
|
3
|
4
|
5
|
6
|
8
|
10
|
12
|
14
|
|
L
|
108
|
117
|
127
|
140
|
165
|
178
|
190
|
203
|
229
|
254
|
267
|
292
|
330
|
356
|
381
|
|
H
|
180
|
180
|
185
|
200
|
210
|
215
|
250
|
270
|
300
|
340
|
365
|
400
|
450
|
510
|
590
|
|
W
|
400
|
400
|
500
|
500
|
600
|
600
|
820
|
820
|
300
|
300
|
320
|
320
|
350
|
380
|
380
|
|
重量(kg)
|
10
|
12
|
14
|
17
|
19
|
21
|
29
|
33
|
48
|
75
|
98
|
125
|
171
|
230
|
370
|
|
型號
|
X47-300LB
|
|
壓力等級
|
300LB
|
|
口徑Size
|
mm
|
15
|
20
|
25
|
32
|
40
|
50
|
65
|
80
|
100
|
125
|
150
|
200
|
250
|
300
|
350
|
|
in
|
1/2
|
3/4
|
1
|
11/4
|
11/2
|
2
|
21/2
|
3
|
4
|
5
|
6
|
8
|
10
|
12
|
14
|
|
L
|
140
|
152
|
165
|
178
|
190
|
216
|
241
|
283
|
305
|
381
|
403
|
419
|
457
|
502
|
762
|
|
H
|
180
|
180
|
185
|
200
|
210
|
215
|
250
|
270
|
300
|
340
|
365
|
400
|
450
|
510
|
590
|
|
W
|
400
|
400
|
500
|
600
|
600
|
820
|
1000
|
1000
|
300
|
300
|
320
|
320
|
350
|
380
|
380
|
|
重量(kg)
|
12
|
14
|
16
|
19
|
21
|
24
|
31
|
36
|
61
|
86
|
130
|
190
|
255
|
380
|
560
|
|
型號
|
X47-600LB
|
|
壓力等級
|
600LB
|
|
口徑Size
|
mm
|
15
|
20
|
25
|
32
|
40
|
50
|
65
|
80
|
100
|
125
|
150
|
200
|
250
|
300
|
350
|
|
in
|
1/2
|
3/4
|
1
|
11/4
|
11/2
|
2
|
21/2
|
3
|
4
|
5
|
6
|
8
|
10
|
12
|
14
|
|
L
|
165
|
190
|
216
|
229
|
241
|
292
|
330
|
356
|
432
|
508
|
559
|
660
|
787
|
838
|
889
|
|
H
|
180
|
180
|
185
|
200
|
210
|
215
|
250
|
270
|
300
|
340
|
365
|
400
|
450
|
510
|
590
|
|
W
|
400
|
400
|
500
|
500
|
600
|
600
|
820
|
820
|
300
|
300
|
320
|
320
|
350
|
380
|
380
|
|
重量(kg)
|
14
|
16
|
18
|
20
|
24
|
29
|
35
|
47
|
91
|
129
|
210
|
320
|
660
|
920
|
1250
|
八、美標提升式旋塞閥 訂貨須知
訂貨時請填寫《規格書》或注明以下內容:
1、若訂貨前未選定型號,請向我們提供使用參數:1.公稱通徑,2.流體性質(包括公稱壓力、溫度、粘度或酸堿性),3.閥體、閥芯材料。
2、若已經由設計單位選定我公司的美標提升式旋塞閥 型號,請按型號直接向我司銷售部訂購。
3、當使用的場合重要或管路比較復雜時,請您盡量提供設計圖紙和詳細參數,由我們為您審核把關。